
Stephen’s Self-Storage
Commercial Development
Prescott, WI
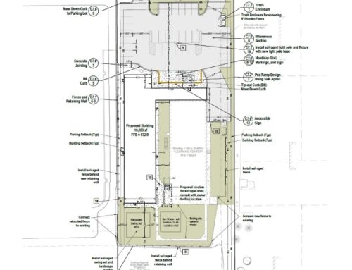
LRC provided site planning, civil engineering, entitlement submittals, and landscape architecture services for Stephen’s Self-Storage Facility on Orrin Road in Prescott, WI. The design included mini self-storage and climate-controlled storage facilities with access to the service drive along the north side of the project. The significant challenge on this project was the regional storm water basin that was required to accommodate the on and offsite drainage of the site. Ultimately the facility was designed and approved to serve the project site and the adjacent properties. Agreements were executed to share responsibility for maintenance and upkeep of the facility. The facility was constructed during the summer of 2025 and is currently serving the area.
